Dossier de presse no. 3153-05

Journalistes! Découvrez ce projet prêt à publier. Créez gratuitement un compte média v2com pour télécharger les images haute résolution.

Créez un compte média
Dossier de presse - Communiqué de presse - Ryuichi Sasaki Architecture crée Escenario Meguro Hanabusayama, une œuvre qui allie habitat urbain et forme naturelle - Ryuichi Sasaki Architecture

Dossier de presse | no. 3153-05

Ryuichi Sasaki Architecture crée Escenario Meguro Hanabusayama, une œuvre qui allie habitat urbain et forme naturelle

Suginami City, Japon

Ryuichi Sasaki Architecture

Ryuichi Sasaki Architecture conçoit Escenario Hanabusayama, une harmonie entre architecture et paysage

Suginami City, Japon, 15-12-2025 - 

Ryuichi Sasaki Architecture, agence d’architecture internationale maintes fois récompensée, a le plaisir de dévoiler Escenario Hanabusayama, un immeuble résidentiel de douze logements situé dans l’un des quartiers vallonnés les plus paisibles de Tokyo. Puisant son inspiration dans la topographie naturelle et les formations géologiques stratifiées du site, le projet traduit le caractère du terrain en une expression architecturale de calme et de raffinement.


Tailler l’architecture dans la terre

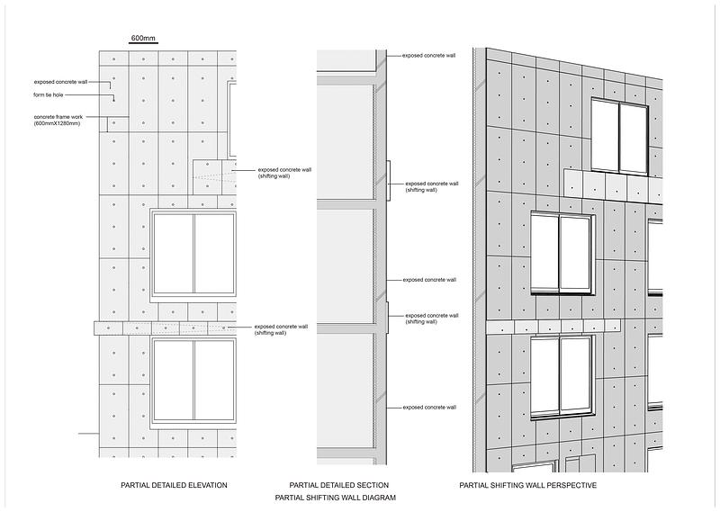
Entouré d’un relief ondulant et de quartiers résidentiels historiques datant de l’époque d’Edo, Escenario Hanabusayama reflète les strates et les pentes de son environnement, tant dans sa forme que dans ses matériaux. La façade, soulignée de lignes obliques et allongées, évoque les couches de roche, tandis que les murs d’approche et d’enceinte adoptent des motifs de pierre fine et des inclinaisons douces inspirées des formations naturelles. En béton brut, comme taillé directement dans la falaise, l’édifice s’ancre dans le paysage et efface la frontière entre structure et terrain.


Intégrer la lumière, l’air et le paysage emprunté

À l’arrière du site, une falaise de dix mètres de haut assure stabilité et protection, tandis que la façade sur rue s’ouvre largement grâce à une trame rythmée d’ouvertures carrées reliant la vie intérieure à la ville. Chaque logement bénéficie d’ouvertures sur deux façades, favorisant la ventilation croisée et la lumière naturelle tout en réduisant la dépendance aux systèmes mécaniques. Les habitants profitent de vues cadrées sur la végétation luxuriante du sommet de la colline — une réinterprétation architecturale du shakkei, le concept japonais du paysage emprunté.


Un dialogue apaisé entre matière et espace

À l’intérieur, les surfaces en béton restent apparentes : leurs textures fines et les nuances greige composent un fond serein pour la vie quotidienne. Le jeu de la lumière sur ces surfaces amplifie la sensation d’ouverture et de quiétude, créant un environnement délicatement méditatif où l’habitat urbain s’accorde en silence avec la forme naturelle du terrain.

Fiche technique

Nom du projet : Escenario Meguro Hanabusayama
Architecte principal : Ryuichi Sasaki / Ryuichi Sasaki Architecture
Équipe d’architecture : Ryuichi Sasaki, Yuriko Ogura, Anna Osawa / Ryuichi Sasaki Architecture
Ingénierie structurelle : Tatsumi Terado Structural Studio
Production : Hidetaka Gonai/Escenario
Maître d’ouvrage : Nobumitsu Ohashi/Shukou Kensetsu
Gestion de l’immeuble : Kiyoshi Yonemitsu/Alpha Management & Partners
Photographie : Takumi Ota Photography
Superficie du terrain : 172,45 m²
Surface totale de plancher : 496,82 m²
Adresse : 3-10-27 Kamiōsaki, Shinagawa-ku, Tokyo, Japon

À propos de Ryuichi Sasaki Architecture

Basée à Tokyo, au Japon, Ryuichi Sasaki Architecture est une agence d’architecture qui s’est imposée ces dernières années comme l’une des plus reconnues à l’international dans son domaine. Sous la direction de l’architecte de renom Ryuichi Sasaki, l’agence s’appuie sur l’expertise de ses professionnels pour concevoir et conseiller une variété de projets, allant des équipements culturels aux établissements commerciaux. On compte parmi ces projets des salles de concert, des complexes résidentiels, des hôtels, des commerces, des bars et des habitations. L’agence s’attache à saisir le zeitgeist de chaque espace qu’elle façonne, en cultivant une réinterprétation et un repositionnement constants pour atteindre l’excellence architecturale.

En 2022, Dezeen a désigné Ryuichi Sasaki Architecture parmi les 23 meilleurs studios d’architecture de l’année. L’agence a été finaliste à neuf reprises aux World Architecture Festival Awards (WAF), lauréate du Plan Award (Italie) dans la catégorie Office & Business, et a remporté la distinction Best of Best aux Architecture Master Prize Awards aux États-Unis — une première historique pour une agence d’architecture japonaise.


- 30 -

Pour plus d’informations

  1. rsa.co.jp/

Contact média

  • Ryuichi Sasaki Architecture
  • Ryuichi Sasaki
  • info@rsa.co.jp
  • +81-3-5422-8160

Pièces jointes

241127 Escenario Meguro Hanabusayama-.pdf
Images basse résolution ~ 2,3 Mo
Images tif haute résolution ~ 370 Mo
Images jpg haute résolution ~ 32 Mo

Termes et conditions

Pour diffusion immédiate

La mention des crédits photo est obligatoire. Merci d’inclure la source v2com lorsque possible et il est toujours apprécié de recevoir les versions PDF de vos articles.

ESCENARIO MEGURO HANABUSAYAMA
Crédit vidéo : RSA/TAKUMI OTA PHOTOGRAPHY
Dossier de presse | 3153-05 - Communiqué de presse | Ryuichi Sasaki Architecture crée Escenario Meguro Hanabusayama, une œuvre qui allie habitat urbain et forme naturelle - Ryuichi Sasaki Architecture - Architecture résidentielle -   EXTERIOR  - Crédit photo :  <p class="">Takumi Ota Photography</p>
EXTERIOR
Crédit photo :

Takumi Ota Photography

Télécharger

Image très haute résolution : 17.14 x 20.0 @ 300dpi ~ 46 Mo

Dossier de presse | 3153-05 - Communiqué de presse | Ryuichi Sasaki Architecture crée Escenario Meguro Hanabusayama, une œuvre qui allie habitat urbain et forme naturelle - Ryuichi Sasaki Architecture - Architecture résidentielle - <font dir="auto" style="vertical-align: inherit;"><font dir="auto" style="vertical-align: inherit;">STREET FRONT</font></font><font dir="auto" style="vertical-align: inherit;"><font dir="auto" style="vertical-align: inherit;"><font dir="auto" style="vertical-align: inherit;"><font dir="auto" style="vertical-align: inherit;"></font></font></font></font> - Crédit photo : <p class="">Takumi Ota Photography</p>
STREET FRONT
Crédit photo :

Takumi Ota Photography

Télécharger

Image très haute résolution : 14.69 x 17.14 @ 300dpi ~ 13 Mo

Dossier de presse | 3153-05 - Communiqué de presse | Ryuichi Sasaki Architecture crée Escenario Meguro Hanabusayama, une œuvre qui allie habitat urbain et forme naturelle - Ryuichi Sasaki Architecture - Architecture résidentielle - <font dir="auto" style="vertical-align: inherit;"><font dir="auto" style="vertical-align: inherit;"> EXTERIOR</font></font> - Crédit photo :  Takumi Ota Photography
EXTERIOR
Crédit photo : Takumi Ota Photography
Télécharger

Image très haute résolution : 17.14 x 11.43 @ 300dpi ~ 10 Mo

Dossier de presse | 3153-05 - Communiqué de presse | Ryuichi Sasaki Architecture crée Escenario Meguro Hanabusayama, une œuvre qui allie habitat urbain et forme naturelle - Ryuichi Sasaki Architecture - Architecture résidentielle - <font dir="auto" style="vertical-align: inherit;"><font dir="auto" style="vertical-align: inherit;">EXTERIOR</font></font><font dir="auto" style="vertical-align: inherit;"><font dir="auto" style="vertical-align: inherit;"></font></font> - Crédit photo :  Takumi Ota Photography
EXTERIOR
Crédit photo : Takumi Ota Photography
Télécharger

Image très haute résolution : 13.33 x 20.0 @ 300dpi ~ 39 Mo

Dossier de presse | 3153-05 - Communiqué de presse | Ryuichi Sasaki Architecture crée Escenario Meguro Hanabusayama, une œuvre qui allie habitat urbain et forme naturelle - Ryuichi Sasaki Architecture - Architecture résidentielle - <font dir="auto" style="vertical-align: inherit;"><font dir="auto" style="vertical-align: inherit;"> EXTERIOR</font></font> - Crédit photo :  Takumi Ota Photography
EXTERIOR
Crédit photo : Takumi Ota Photography
Télécharger

Image très haute résolution : 11.43 x 17.14 @ 300dpi ~ 30 Mo

Dossier de presse | 3153-05 - Communiqué de presse | Ryuichi Sasaki Architecture crée Escenario Meguro Hanabusayama, une œuvre qui allie habitat urbain et forme naturelle - Ryuichi Sasaki Architecture - Architecture résidentielle - <font dir="auto" style="vertical-align: inherit;"><font dir="auto" style="vertical-align: inherit;"> INTERIOR</font></font> - Crédit photo :  Takumi Ota Photography
INTERIOR
Crédit photo : Takumi Ota Photography
Télécharger

Image très haute résolution : 17.14 x 17.14 @ 300dpi ~ 36 Mo

Dossier de presse | 3153-05 - Communiqué de presse | Ryuichi Sasaki Architecture crée Escenario Meguro Hanabusayama, une œuvre qui allie habitat urbain et forme naturelle - Ryuichi Sasaki Architecture - Architecture résidentielle - <font dir="auto" style="vertical-align: inherit;"><font dir="auto" style="vertical-align: inherit;"> INTERIOR</font></font> - Crédit photo :  Takumi Ota Photography
INTERIOR
Crédit photo : Takumi Ota Photography
Télécharger

Image très haute résolution : 17.14 x 11.43 @ 300dpi ~ 25 Mo

Dossier de presse | 3153-05 - Communiqué de presse | Ryuichi Sasaki Architecture crée Escenario Meguro Hanabusayama, une œuvre qui allie habitat urbain et forme naturelle - Ryuichi Sasaki Architecture - Architecture résidentielle - <font dir="auto" style="vertical-align: inherit;"><font dir="auto" style="vertical-align: inherit;"> INTERIOR</font></font> - Crédit photo :  Takumi Ota Photography
INTERIOR
Crédit photo : Takumi Ota Photography
Télécharger

Image très haute résolution : 17.14 x 11.43 @ 300dpi ~ 25 Mo

Dossier de presse | 3153-05 - Communiqué de presse | Ryuichi Sasaki Architecture crée Escenario Meguro Hanabusayama, une œuvre qui allie habitat urbain et forme naturelle - Ryuichi Sasaki Architecture - Architecture résidentielle - <font dir="auto" style="vertical-align: inherit;"><font dir="auto" style="vertical-align: inherit;"> INTERIOR</font></font> - Crédit photo :  Takumi Ota Photography
INTERIOR
Crédit photo : Takumi Ota Photography
Télécharger

Image très haute résolution : 19.8 x 13.17 @ 300dpi ~ 9,4 Mo

Dossier de presse | 3153-05 - Communiqué de presse | Ryuichi Sasaki Architecture crée Escenario Meguro Hanabusayama, une œuvre qui allie habitat urbain et forme naturelle - Ryuichi Sasaki Architecture - Architecture résidentielle - <font dir="auto" style="vertical-align: inherit;"><font dir="auto" style="vertical-align: inherit;"> INTERIOR</font></font> - Crédit photo :  Takumi Ota Photography
INTERIOR
Crédit photo : Takumi Ota Photography
Télécharger

Image très haute résolution : 17.14 x 11.43 @ 300dpi ~ 29 Mo

Dossier de presse | 3153-05 - Communiqué de presse | Ryuichi Sasaki Architecture crée Escenario Meguro Hanabusayama, une œuvre qui allie habitat urbain et forme naturelle - Ryuichi Sasaki Architecture - Architecture résidentielle - <font dir="auto" style="vertical-align: inherit;"><font dir="auto" style="vertical-align: inherit;"> INTERIOR</font></font> - Crédit photo :  Takumi Ota Photography
INTERIOR
Crédit photo : Takumi Ota Photography
Télécharger

Image très haute résolution : 17.14 x 11.43 @ 300dpi ~ 25 Mo

Dossier de presse | 3153-05 - Communiqué de presse | Ryuichi Sasaki Architecture crée Escenario Meguro Hanabusayama, une œuvre qui allie habitat urbain et forme naturelle - Ryuichi Sasaki Architecture - Architecture résidentielle - <font dir="auto" style="vertical-align: inherit;"><font dir="auto" style="vertical-align: inherit;"> INTERIOR</font></font> - Crédit photo :  Takumi Ota Photography
INTERIOR
Crédit photo : Takumi Ota Photography
Télécharger

Image très haute résolution : 17.14 x 11.43 @ 300dpi ~ 23 Mo

Dossier de presse | 3153-05 - Communiqué de presse | Ryuichi Sasaki Architecture crée Escenario Meguro Hanabusayama, une œuvre qui allie habitat urbain et forme naturelle - Ryuichi Sasaki Architecture - Architecture résidentielle - <font dir="auto" style="vertical-align: inherit;"><font dir="auto" style="vertical-align: inherit;"> INTERIOR</font></font> - Crédit photo :  Takumi Ota Photography
INTERIOR
Crédit photo : Takumi Ota Photography
Télécharger

Image très haute résolution : 17.14 x 11.43 @ 300dpi ~ 25 Mo

Dossier de presse | 3153-05 - Communiqué de presse | Ryuichi Sasaki Architecture crée Escenario Meguro Hanabusayama, une œuvre qui allie habitat urbain et forme naturelle - Ryuichi Sasaki Architecture - Architecture résidentielle - <font dir="auto" style="vertical-align: inherit;"><font dir="auto" style="vertical-align: inherit;"> INTERIOR</font></font> - Crédit photo :  Takumi Ota Photography
INTERIOR
Crédit photo : Takumi Ota Photography
Télécharger

Image très haute résolution : 20.0 x 12.94 @ 300dpi ~ 9 Mo

Dossier de presse | 3153-05 - Communiqué de presse | Ryuichi Sasaki Architecture crée Escenario Meguro Hanabusayama, une œuvre qui allie habitat urbain et forme naturelle - Ryuichi Sasaki Architecture - Architecture résidentielle - <font dir="auto" style="vertical-align: inherit;"><font dir="auto" style="vertical-align: inherit;"> STAIRCASE</font></font> - Crédit photo :  Takumi Ota Photography
STAIRCASE
Crédit photo : Takumi Ota Photography
Télécharger

Image très haute résolution : 17.14 x 11.43 @ 300dpi ~ 27 Mo

Dossier de presse | 3153-05 - Communiqué de presse | Ryuichi Sasaki Architecture crée Escenario Meguro Hanabusayama, une œuvre qui allie habitat urbain et forme naturelle - Ryuichi Sasaki Architecture - Architecture résidentielle - <font dir="auto" style="vertical-align: inherit;"><font dir="auto" style="vertical-align: inherit;"> STREET VIEW</font></font> - Crédit photo :  Takumi Ota Photography
STREET VIEW
Crédit photo : Takumi Ota Photography
Télécharger

Image très haute résolution : 17.14 x 16.94 @ 300dpi ~ 40 Mo

Dossier de presse | 3153-05 - Communiqué de presse | Ryuichi Sasaki Architecture crée Escenario Meguro Hanabusayama, une œuvre qui allie habitat urbain et forme naturelle - Ryuichi Sasaki Architecture - Architecture résidentielle - <font dir="auto" style="vertical-align: inherit;"><font dir="auto" style="vertical-align: inherit;"> STREET VIEW</font></font> - Crédit photo :  Takumi Ota Photography
STREET VIEW
Crédit photo : Takumi Ota Photography
Télécharger

Image très haute résolution : 13.71 x 17.14 @ 300dpi ~ 32 Mo

Dossier de presse | 3153-05 - Communiqué de presse | Ryuichi Sasaki Architecture crée Escenario Meguro Hanabusayama, une œuvre qui allie habitat urbain et forme naturelle - Ryuichi Sasaki Architecture - Architecture résidentielle - <font dir="auto" style="vertical-align: inherit;"><font dir="auto" style="vertical-align: inherit;"> EXTERIOR</font></font> - Crédit photo :  Takumi Ota Photography
EXTERIOR
Crédit photo : Takumi Ota Photography
Télécharger

Image très haute résolution : 11.43 x 17.14 @ 300dpi ~ 27 Mo

Dossier de presse | 3153-05 - Communiqué de presse | Ryuichi Sasaki Architecture crée Escenario Meguro Hanabusayama, une œuvre qui allie habitat urbain et forme naturelle - Ryuichi Sasaki Architecture - Architecture résidentielle - <font dir="auto" style="vertical-align: inherit;"><font dir="auto" style="vertical-align: inherit;"> ELEVATION</font></font> - Crédit photo : Ryuichi Sasaki Architecture
ELEVATION
Crédit photo : Ryuichi Sasaki Architecture
Télécharger

Image haute résolution : 16.55 x 11.7 @ 300dpi ~ 1,7 Mo

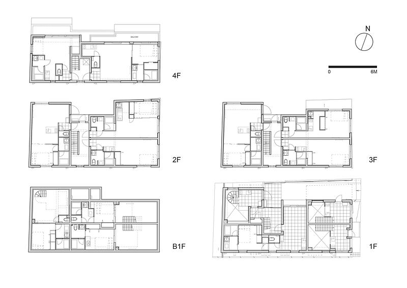
Dossier de presse | 3153-05 - Communiqué de presse | Ryuichi Sasaki Architecture crée Escenario Meguro Hanabusayama, une œuvre qui allie habitat urbain et forme naturelle - Ryuichi Sasaki Architecture - Architecture résidentielle - <font dir="auto" style="vertical-align: inherit;"><font dir="auto" style="vertical-align: inherit;"> FLOOR PLAN</font></font> - Crédit photo : Ryuichi Sasaki Architecture
FLOOR PLAN
Crédit photo : Ryuichi Sasaki Architecture
Télécharger

Image haute résolution : 16.54 x 11.69 @ 300dpi ~ 2,4 Mo

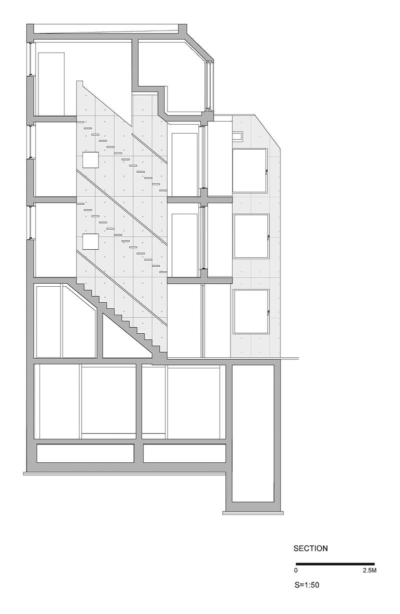
Dossier de presse | 3153-05 - Communiqué de presse | Ryuichi Sasaki Architecture crée Escenario Meguro Hanabusayama, une œuvre qui allie habitat urbain et forme naturelle - Ryuichi Sasaki Architecture - Architecture résidentielle - <font dir="auto" style="vertical-align: inherit;"><font dir="auto" style="vertical-align: inherit;"> SECTION</font></font> - Crédit photo : Ryuichi Sasaki Architecture
SECTION
Crédit photo : Ryuichi Sasaki Architecture
Télécharger

Image haute résolution : 10.0 x 15.33 @ 300dpi ~ 1,6 Mo

Dossier de presse | 3153-05 - Communiqué de presse | Ryuichi Sasaki Architecture crée Escenario Meguro Hanabusayama, une œuvre qui allie habitat urbain et forme naturelle - Ryuichi Sasaki Architecture - Architecture résidentielle - <font dir="auto" style="vertical-align: inherit;"><font dir="auto" style="vertical-align: inherit;"> SECTION</font></font> - Crédit photo : Ryuichi Sasaki Architecture
SECTION
Crédit photo : Ryuichi Sasaki Architecture
Télécharger

Image haute résolution : 16.37 x 11.58 @ 300dpi ~ 1,8 Mo

Dossier de presse | 3153-05 - Communiqué de presse | Ryuichi Sasaki Architecture crée Escenario Meguro Hanabusayama, une œuvre qui allie habitat urbain et forme naturelle - Ryuichi Sasaki Architecture - Architecture résidentielle - <font dir="auto" style="vertical-align: inherit;"><font dir="auto" style="vertical-align: inherit;"> SECTION PERSPECTIVE</font></font> - Crédit photo : Ryuichi Sasaki Architecture
SECTION PERSPECTIVE
Crédit photo : Ryuichi Sasaki Architecture
Télécharger

Image haute résolution : 16.54 x 11.69 @ 300dpi ~ 2,9 Mo

Dossier de presse | 3153-05 - Communiqué de presse | Ryuichi Sasaki Architecture crée Escenario Meguro Hanabusayama, une œuvre qui allie habitat urbain et forme naturelle - Ryuichi Sasaki Architecture - Architecture résidentielle - <font dir="auto" style="vertical-align: inherit;"><font dir="auto" style="vertical-align: inherit;"> DETAIL</font></font> - Crédit photo : Ryuichi Sasaki Architecture
DETAIL
Crédit photo : Ryuichi Sasaki Architecture
Télécharger

Image haute résolution : 16.21 x 11.53 @ 300dpi ~ 2,9 Mo

Dossier de presse | 3153-05 - Communiqué de presse | Ryuichi Sasaki Architecture crée Escenario Meguro Hanabusayama, une œuvre qui allie habitat urbain et forme naturelle - Ryuichi Sasaki Architecture - Architecture résidentielle -  SITE PLAN - Crédit photo : Ryuichi Sasaki Architecture
SITE PLAN
Crédit photo : Ryuichi Sasaki Architecture
Télécharger

Image moyenne résolution : 10.0 x 7.07 @ 300dpi ~ 2,4 Mo

Vous pourriez également aimer...